| 地址 | 日本神奈川縣橫須賀市 | ||
| 價格 | 人民幣:890萬 | 租金回報 | 6.88% | 
| 建筑年代 | 1997年10月 | 建筑結構 | 鐵骨造 | 
| 實際面積 | 473.17㎡ | 土地面積 | 113.85㎡ | 
| 陽臺面積 | / | 車庫面積 | / | 
| 總戶數 | 9戶 | 所在層 | 1-10層 | 
| 房型 | 2室1廳 | 朝向 | / | 
| 租賃情況 | 目前整棟出租 | 租金 | 約12,252,120日元/年 | 
| 管理費 | / | 修繕費 | / | 
| 建蔽率 | 80% | 容積率 | 400% | 
| 用途地域 | 商業地域 | 土地權利 | 永久產權 | 
| 交通 | 京濱急行本線【橫須賀中央】站 | ||
 
                             陳 芳 営業部
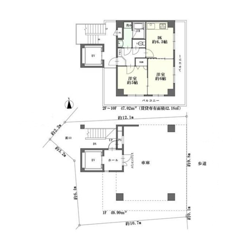
                        1997年10月建成,永久產權,符合新抗震標準。位于日本神奈川縣橫須賀市,近鄰京濱急行本線【橫須賀中央】站。公寓樓東側、西北側分別寬約22m、5.5m道路,鐵骨造10層,2019年、2024年實施修繕,包括消防設備改修、屋頂防水、外壁涂裝、部分房間內部修繕等,1F車庫,2F以上住居部分,總戶數9戶,2室1廳(42.18㎡),室內生活配套設備齊全,目前整棟出租中,詳情歡迎咨詢。海外客戶可以申請日本銀行貸款購房,目前有兩種方式:1.需要在日本設立公司,以法人名義購買,貸款額度約60-70%、還款周期25-35年、貸款利率1.5%起。2.個人名義購買,海外客戶可以申請日本個人抵押貸款購房,不需要設立公司,貸款額度約50-60%,還款周期15-25年,貸款年齡65歲以內,貸款額度不能低于2000萬日元,貸款利率2.7%起。
No.389
神奈川縣  橫須賀市
                                                    地址:日本神奈川縣橫須賀市
                            交通:京濱急行本線【橫須賀中央】站
                        
                                電話
                                
                                
                                    
                                
                            
                            
                                姓名
                                
                                    
                                
                            
                            
                                微信
                                
                                    
                                
                            
                            
                                驗證碼
                                
                                    
                                     
                                
                            
                            
                        您會在一個工作日內得到置業顧問的聯絡
 
    








.jpg) 
                            .jpg) 
                            .jpg) 
                            .jpg) 
                             
                 
                 
                 
                 
             
             
             
             
                     
                     
                    

 
                 
                     
                     
                    