| 地址 | 東京都千代田 | ||
| 價格 | 人民幣:1640萬 | 租金回報 | / | 
| 建筑年代 | 2019年9月 | 建筑結構 | 鋼筋混凝土造 | 
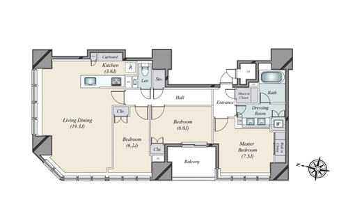
| 實際面積 | 101.08㎡ | 土地面積 | / | 
| 陽臺面積 | 4.54㎡ | 車庫面積 | / | 
| 總戶數 | 106戶 | 所在層 | 3層 | 
| 房型 | 3室1廳 | 朝向 | / | 
| 租賃情況 | / | 租金 | / | 
| 管理費 | 61,100日元/月 | 修繕費 | 9,810日元/月 | 
| 建蔽率 | / | 容積率 | / | 
| 用途地域 | 第二種住居地域 | 土地權利 | 永久產權 | 
| 交通 | ①東京メトロ半蔵門線【半蔵門】站 ②JR中央.總武線【市ヶ谷】站 ③都營新宿線【市ヶ谷】站 ④東京メトロ有樂町線.南北線【市ヶ谷】站 | ||
                            2019年9月建成,永久產權,符合新抗震標準。位于東京都千代田區,5線2站可以利用,近鄰【半蔵門】站、【市ヶ谷】站。公寓樓地上18層付地下1層,靠近皇宮豐富的自然環境,有長期修繕計劃,多重安全系統設備,有接待服務,各層24小時可扔垃圾,可飼養寵物(有細規)。公寓位于3層角住戶,3室1廳,客餐廳及主臥室有地暖,全房間安裝空調,步入式衣帽間等充實的收納空間,衛浴獨立,詳情歡迎咨詢。海外客戶可以申請日本銀行貸款購房,目前有兩種方式:1.需要在日本設立公司,以法人名義購買,貸款額度約60-70%、還款周期25-35年、貸款利率1.5%起。2.個人名義購買,海外客戶可以申請日本個人抵押貸款購房,不需要設立公司,貸款額度約50-60%,還款周期15-25年,貸款年齡65歲以內,貸款額度不能低于2000萬日元,貸款利率2.7%起。
No.73
                        
1. 地理與基本信息:千代田區地處東京都中央,北鄰文京區、豐島區,東接臺東區、荒川區,南靠中央區、港區,西毗新宿區。面積約11.66平方公里,2023年人口約6萬。作為商業區,白天人口數量遠多于夜間。這里是日本政治和經濟的中心,皇居、國會議事堂等重要設施集中于此。
2. 主要區域及其特色
• 皇居周邊:皇居是日本天皇的居所,皇居東御苑和皇居外苑對公眾開放,是著名的觀光景點。丸之內林立著歷史悠久的辦公樓和商業設施,是商業中心。
• 大手町:大手町站有多條地鐵線路經過,發展成為辦公街區。大手町塔樓是高層大樓,入駐了許多金融和IT企業。
• 有樂町:有樂町站有JR山手線和東京地鐵有樂町線經過,商業設施完備。有樂町大樓內可購物和觀影。
• 秋葉原:秋葉原站是JR山手線、總武線、東京地鐵日比谷線、筑波快線的交匯點,以電器街聞名。電器街匯聚了大量動漫、游戲和電子產品的專賣店。
• 神田:神田站有JR中央線、京濱東北線、山手線等線路經過,也是學生街。神田古書店街是出版業的中心,有許多古書店。
• 二重橋前:東京站是日本的交通樞紐,新干線和眾多普通鐵路線在此始發和到達,分為丸之內側和八重洲側。
3. 文化與歷史:千代田區擁有自江戶時代以來的悠久歷史,皇居更是日本歷史和文化的象征。千代田區立日比谷圖書文化館是當地文化活動的重要場所。
4. 觀光景點:皇居的二重橋和東御苑深受游客喜愛。靖國神社是祭祀戰爭中陣亡者的神社。國會議事堂提供參觀活動,可了解日本政治中心的風貌。秋葉原作為動漫和電子產品的圣地,吸引著大量游客。
5. 交通出行:千代田區是東京主要鐵路網的匯聚地,東京站更是有多條線路經過。主要車站有東京站、有樂町站、秋葉原站、大手町站、神田站等。區內有方便出行和觀光的公交線路。
6. 生活環境:千代田區內中小學數量較少,常借助周邊區的學校資源。一橋大學的部分校區位于區內。醫療方面,附近有圣路加國際醫院、東京醫科大學醫院等大型醫療設施。商業上,丸之內、有樂町、秋葉原等地購物和餐飲選擇豐富。
7. 活動與節慶:神田祭是日本三大祭典之一,華麗的花車游行值得一看。秋葉原電器節是電器街特有的活動,熱鬧非凡。
8. 現代的千代田區:千代田區在保持商業區地位的同時,觀光吸引力也在不斷提升。高層大樓和再開發項目持續推進,丸之內和大手町區域的現代化進程加快。國際化色彩濃厚,吸引了大量外國游客和商務人士。
總結:千代田區是日本政治、經濟、文化的中心,涵蓋了從歷史遺跡到前沿商業區的多樣風貌。皇居和東京站周邊的美麗街景,以及秋葉原的活力氛圍等,看點豐富。這里無論是居住還是觀光都頗具魅力,但物價和房租相對較高。如果您想了解特定區域或觀光景點的更多信息,歡迎告知。
您會在一個工作日內得到置業顧問的聯絡
    




