| 地址 | 埼玉縣 | ||
| 價格 | 人民幣:284萬 | 租金回報 | / |
| 建筑年代 | 2023年 | 建筑結構 | 木造 |
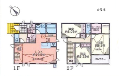
| 實際面積 | 96.58㎡~102.48㎡ | 土地面積 | 100.00㎡~118.00㎡ |
| 陽臺面積 | / | 車庫面積 | 有車位 |
| 總戶數 | / | 所在層 | 1-2 |
| 房型 | 3室1廳 | 朝向 | / |
| 租賃情況 | / | 租金 | / |
| 管理費 | / | 修繕費 | / |
| 建蔽率 | 60 % | 容積率 | 200% |
| 用途地域 | 第二種住居地域 | 土地權利 | 永久產權 |
| 交通 | 埼玉高速鐵道線【川口元郷】站徒步/分鐘 | ||
2023年新建戶建,販賣戶數3棟,284萬人民幣~,永久產權,符合新抗震標準。位于日本埼玉縣,從埼玉高速鐵道線【川口元郷】站徒步15分鐘。周邊幼稚園約30m,保育園約250m,小學校約1,070m,中學校約600m,超市約280m,藥妝店約170m,郵局約660m,公園約200m,均在步行范圍,生活便利。戶建均木造2層,均有車位,各層都有衛生間,雖都是3室1廳,室內設計各有特點,生活配套設備齊全,詳情歡迎咨詢。海外客戶可以申請日本銀行貸款購房,目前有兩種方式:1.需要在日本設立公司,以法人名義購買,貸款額度約60-70%、還款周期25-35年、貸款利率1.5%起。2.個人名義購買,海外客戶可以申請日本個人抵押貸款購房,不需要設立公司,貸款額度約50-60%,還款周期15-25年,貸款年齡65歲以內,貸款額度不能低于2000萬日元,貸款利率2.7%起
No.2
地理與交通
川口市地處關東平原,荒川(Arakawa River)流經其南部,與東京都足立區接壤。由于靠近東京,川口市的交通十分便利,主要依靠JR京濱東北線(Keihin-Tohoku Line)連接東京和周邊地區。川口站和西川口站是市內的主要火車站,尤其是川口站,周邊商業設施發達,是城市的中心區域。此外,埼玉高速鐵路(Saitama Rapid Railway)也服務于部分地區,方便居民通勤至東京或其他埼玉縣城市。
歷史與文化
川口市的歷史可以追溯到江戶時代,當時它是一個以農業為主的小型聚落。進入20世紀,隨著工業化的推進,川口市逐漸發展成為一個重要的制造業基地,尤其以鑄造業聞名,有“鑄造之城”的美譽。雖然近年來重工業有所衰退,但其工業遺產仍然是城市文化的一部分。
市內有幾處值得一提的文化和歷史景點:
• 川口神社:一座歷史悠久的神社,是當地居民祈福和舉辦傳統活動的地方。
• 舊田中家住宅:一座保存完好的傳統日本建筑,展現了江戶時代的住宅風格。
經濟與社會
川口市的經濟發展曾依賴鑄造和金屬加工等傳統制造業,如今逐漸轉型為住宅區和中小企業聚集地。由于靠近東京,許多居民選擇在東京工作,白天通勤,晚上返回川口居住,因此被稱為“東京的臥城”(bedroom community)。
近年來,川口市因其多元文化而受到關注。市內居住著大量外國居民,尤其是中國、韓國和土耳其裔(包括庫爾德人)社區較為顯著。特別是庫爾德人社區,因其規模和文化影響力,在日本社會中引發了一些討論。
生活與特色
川口市的物價和生活成本相對東京較低,吸引了許多家庭和年輕人定居。市內有大型購物中心(如Ario川口)、公園(如川口綠地公園)和豐富的餐飲選擇,生活便利性較高。此外,每年舉辦的“川口花火大會”(煙火節)是當地一大盛事,吸引不少游客。
小結
川口市是一個兼具工業歷史、現代生活和多元文化特色的城市。它既是東京都市圈的重要組成部分,又保留了自己的地方風貌。如果你對川口市的某個方面(如具體景點、社區文化等)感興趣,可以告訴我,我會進一步為你詳細介紹!
您會在一個工作日內得到置業顧問的聯絡




