| 地址 | 日本神奈川縣川崎市中原區丸子通1 | ||
| 價格 | 人民幣:1820萬 | 租金回報 | 4% |
| 建筑年代 | 2022年1月 | 建筑結構 | 鋼筋混凝土造 |
| 實際面積 | 328.30㎡ | 土地面積 | 126.98㎡ |
| 陽臺面積 | / | 車庫面積 | / |
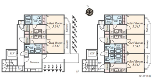
| 總戶數 | 14戶 | 所在層 | 1-5 |
| 房型 | 1室 | 朝向 | / |
| 租賃情況 | 目前滿室出租中 | 租金 | 約14,184,000日元/年/滿室 |
| 管理費 | / | 修繕費 | / |
| 建蔽率 | 80 % | 容積率 | 400% |
| 用途地域 | / | 土地權利 | 永久產權 |
| 交通 | 東急東橫線【新丸子】站徒步3分鐘 | ||
林 武振 営業部
2022年1月建成,永久產權,符合新抗震標準。位于日本神奈川縣川崎市中原區丸子通1丁目,東急東橫線【新丸子】站徒步3分鐘,車站周邊的商店街有餐飲店、超市、便利店、藥妝店,日常購物便利,另外醫院、廣場也在步行10分鐘內,乘車20分鐘可以到橫濱站。公寓樓鋼筋混凝土造5層,配備門禁、快遞箱、電梯等共用設備,共14戶,單間戶型,室內廚具、衛浴設備齊全,目前滿室出租中,詳情歡迎咨詢。海外客戶可以申請日本銀行貸款購房,目前有兩種方式:1.需要在日本設立公司,以法人名義購買,貸款額度約60-70%、還款周期25-35年、貸款利率1.5%起。2.個人名義購買,海外客戶可以申請日本個人抵押貸款購房,不需要設立公司,貸款額度約50-60%,還款周期15-25年,貸款年齡65歲以內,貸款額度不能低于2000萬日元,貸款利率2.7%起。
神奈川縣 川崎市中原區
地址:日本神奈川縣川崎市中原區丸子通1
交通:東急東橫線【新丸子】站徒步3分鐘
您會在一個工作日內得到置業顧問的聯絡




