| 地址 | 東京都澀谷區惠比壽南2 | ||
| 價格 | 人民幣:920萬 | 租金回報 | / |
| 建筑年代 | 2000年10月 | 建筑結構 | 鐵骨鋼筋混凝土造 |
| 實際面積 | 83.92㎡ | 土地面積 | / |
| 陽臺面積 | 16.12㎡ | 車庫面積 | / |
| 總戶數 | 157戶 | 所在層 | 6層 |
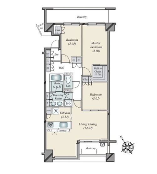
| 房型 | 3室1廳+WIC | 朝向 | / |
| 租賃情況 | / | 租金 | / |
| 管理費 | 13,000日元/月 | 修繕費 | 12,170日元/月 |
| 建蔽率 | / | 容積率 | / |
| 用途地域 | 第一種住居地域.第二種住居地域 | 土地權利 | 永久產權 |
| 交通 | ①JR山手線【惠比壽】站徒步6分鐘 ②埼京線【惠比壽】站徒步6分鐘 ③湘南新宿ライン【惠比壽】站徒步6分鐘 ④東京メトロ日比谷線【惠比壽】站徒步6分鐘 | ||
2000年10月建成,永久產權,符合新抗震標準。位于東京都澀谷區惠比壽南區域,4條線路可以利用,距【惠比壽】站徒步6分鐘,惠比壽車站周邊有東京都攝影美術館和惠比壽橫丁等,作為時尚的街道而聞名,另外惠比壽花園廣場就在旁邊,徒步僅2分鐘,生活便利設施齊全。公寓鐵骨鋼筋混凝土造14層付地下2層,與ALSOK警備公司合作的24小時安全裝置,設有門禁,監控,玄關雙鎖等多重設備,頂層有露臺,休息室,客用停車位等共用部分,物件位于6層,3室1廳,2面陽臺,玄關有置頂大容量的鞋柜.收納,對面式廚房,各居室均有壁櫥,其中主臥是可步入式衣帽間,雙洗臉池,衛生間大理石風格的地板,衛浴獨立。海外客戶可以申請日本銀行貸款購房,目前有兩種方式:1.需要在日本設立公司,以法人名義購買,貸款額度約60-70%、還款周期25-35年、貸款利率1.5%起。2.個人名義購買,海外客戶可以申請日本個人抵押貸款購房,不需要設立公司,貸款額度約50-60%,還款周期15-25年,貸款年齡65歲以內,貸款額度不能低于2000萬日元,貸款利率2.7%起。詳情歡迎咨詢。
1. 地理與基本信息:澀谷區位于東京都中央偏西,神田川和澀谷川穿流而過,北鄰新宿區,東接港區,南靠目黑區,西毗世田谷區。面積約15.11平方公里,2023年人口約23萬,澀谷站周邊白天人口密度極高。這里是年輕人文化與潮流的發源地,也是商業、娛樂和商務的中心。
2. 主要區域及其特色
• 澀谷站周邊:澀谷十字路口世界聞名,游客與當地人往來穿梭。忠犬八公銅像不僅是紀念雕塑,也是熱門的集合地點。SHIBUYA 109是面向年輕人的時尚大廈,深受女性喜愛。SHIBUYA TSUTAYA銷售音樂、影像和書籍,是文化中心。
• 原宿(Harajuku):表參道是高端品牌店和時尚街區,吸引全球時尚人士。竹下通是年輕人潮流前沿匯聚地,服裝店和飾品店林立。明治神宮位于廣闊森林中,舉辦婚禮和新年參拜時熱鬧非凡。代代木公園常舉辦音樂節和各類活動。
• 代代木(Yoyogi):代代木公園是運動和野餐的理想場所,也是東京馬拉松的起點。NHK放送中心是日本放送協會(NHK)總部,可參觀演播室公園和博物館。
• 惠比壽(Ebisu):惠比壽花園廣場是集購物和餐飲于一體的綜合設施,還有札幌啤酒工廠。西鄉山公園是位于高地的小公園,可俯瞰惠比壽街景。
• 代官山(Daikanyama):氛圍寧靜,是有許多咖啡館和精品店的時尚區域,還分布著一些精選店和畫廊。
3. 文化與歷史:澀谷自明治時代鐵路開通后迅速發展,戰后確立了作為年輕人文化中心的地位。澀谷區立鄉土博物館可以讓人們了解澀谷的歷史和文化。
4. 觀光景點:澀谷Hikarie是集購物、餐飲、娛樂于一體的新地標,從展望臺“Shibuya Sky”可欣賞絕美景色。澀谷PARCO是藝術和時尚的發源地,常有新展覽和活動。貓街連接原宿和澀谷,個性店鋪和咖啡館眾多。
5. 交通出行:澀谷站是JR山手線、東急東橫線、田園都市線、京王井之頭線、東京地鐵銀座線、半藏門線、副都心線等多條線路的交匯點。區內主要區域公交線路完備。主要車站有澀谷站、原宿站、惠比壽站等。
6. 生活環境:教育資源豐富,有青山學院大學、東京工業大學等多所高校。惠比壽和代官山周邊診所和醫院完備。商業發達,購物和餐飲選擇豐富,新店不斷開業。
7. 活動與節慶:每年10月的澀谷萬圣節,眾多年輕人和游客盛裝聚集。澀谷音樂節是利用整個街區舉辦的音樂活動,當地藝術家會登臺表演。
8. 現代的澀谷區:再開發不斷推進,誕生了“澀谷STREAM”和“澀谷Fukuras”等新景點。國際化色彩濃厚,外國游客和居民眾多,多語言服務設施不斷增加。
總結:澀谷區是東京充滿活力的區域,能讓人感受到年輕人文化和最新潮流。商業設施和娛樂資源極為豐富,不僅吸引游客,也為居民提供了充滿刺激的生活環境。這里歷史與現代交融,魅力十足,非常值得一游。如果您想了解特定區域或觀光景點的更多信息,歡迎告知。
您會在一個工作日內得到置業顧問的聯絡




