| 地址 | 東京都墨田區本所4 | ||
| 價格 | 人民幣:1558萬 | 租金回報 | 4.80% |
| 建筑年代 | 預計2022年8月竣工 | 建筑結構 | 鋼筋混凝土造 |
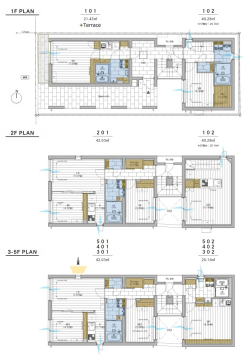
| 實際面積 | 342.45㎡ | 土地面積 | 98.18㎡ |
| 陽臺面積 | / | 車庫面積 | / |
| 總戶數 | 9戶 | 所在層 | 1-5 |
| 房型 | 1室×4 1室1廳×3 2室1廳×2 | 朝向 | / |
| 租賃情況 | / | 租金 | 約13,848,000日元/年/滿室 |
| 管理費 | / | 修繕費 | / |
| 建蔽率 | 60% | 容積率 | 300% |
| 用途地域 | 準工業地域 | 土地權利 | 永久產權 |
| 交通 | ①都營淺草線【本所吾妻橋】站徒步12分鐘 ②東武伊勢崎線【とうきょうスカイツリー】站徒步12分鐘 ③東京メトロ半蔵門線.京成押上線【押上】站徒步15分鐘 | ||
預計2022年8月竣工的整棟投資公寓,永久產權,符合新抗震標準。位于東京都墨田區,4線3站可以利用,距最近【本所吾妻橋】站徒步12分鐘,東京晴空塔所在的押上車站也在步行范圍。公寓鋼筋混凝土造5層,附近有711便利店,超市,醫院,齒科,大橫川親水公園等,全9戶,1室~2室1廳不同戶型,20.14㎡~42.03㎡不等,廚具,收納,衛浴設備等生活配套設施齊全。海外客戶可以申請日本銀行貸款購房,目前有兩種方式:1.需要在日本設立公司,以法人名義購買,貸款額度約60-70%、還款周期25-35年、貸款利率1.5%起。2.個人名義購買,海外客戶可以申請日本個人抵押貸款購房,不需要設立公司,貸款額度約50-60%,還款周期15-25年,貸款年齡65歲以內,貸款額度不能低于2000萬日元,貸款利率2.7%起。詳情歡迎咨詢。
1. 地理與基本信息:墨田區位于東京都東部,北鄰荒川區,東接江東區,南靠中央區,西毗臺東區。面積約13.77平方公里,2023年人口約27萬。這里是熱門觀光地,游客眾多。區內不僅有東京晴空塔等眾多觀光景點,還保留著下町的獨特風情。
2. 主要區域及其特色
• 押上(Oshiage):東京晴空塔是世界最高的自立式電波塔,是當地的觀光地標。晴空塔下的SOLAMACHI是大型商業設施,可在此購物和用餐。
• 兩國(Ryōgoku):兩國國技館是舉辦大相撲大賽的地方,是相撲文化的中心。江戶東京博物館能讓人們了解從江戶時代到現代的東京歷史。
• 向島(Mukōjima):隅田公園是位于隅田川沿岸的大型公園,以賞櫻勝地而聞名。向島百花園是歷史悠久的日式庭園,四季都能欣賞到不同的花卉。
• 錦糸町(Kinshichō):錦糸町站有JR總武線、地鐵半藏門線等線路經過,已發展成為商業區。錦糸町的ORINAS是購物中心,配備完善的電影院和餐飲店。
• 業平橋(Gyōtokubashi):業平橋站有都營地鐵新宿線經過,是住宅區集中的區域。
3. 文化與歷史:墨田區自江戶時代起發展,孕育了隅田川的水運文化和下町文化。舊安田庭園是江戶時代的大名庭園,能讓人感受到墨田區的歷史底蘊。
4. 觀光景點:隅田川花火大會原本每年夏天舉辦,是吸引眾多游客的著名活動(近年來多次停辦)。橫網町公園因是電影《寅次郎的故事》的拍攝地而聞名,園內有寅次郎的銅像。水戶偕樂園是著名的賞櫻公園。
5. 交通出行:鐵路有JR總武線、京成本線、東京地鐵半藏門線、都營地鐵新宿線、大江戶線等。主要車站有押上站、兩國站、錦糸町站、業平橋站等。區內有方便出行和觀光的公交線路。
6. 生活環境:教育資源豐富,從幼兒園到高中的教育機構齊全,東京理科大學、日本大學等高校的校區也在區內。醫療設施完備,有順天堂大學醫學部附屬順天堂醫院、都立墨東醫院等。商業方面,各區域都有商店街和大型商業設施,生活便利性高。
7. 活動與節慶:隅田川花火大會曾是夏日的標志性活動,但近年來舉辦情況不確定。墨田區祭是當地居民參與的地區節日。
8. 現代的墨田區:自東京晴空塔開業以來,墨田區作為觀光地的地位日益提升。再開發不斷推進,新的住宅和商業設施逐漸增多,同時也保留了下町的獨特風情。
總結:墨田區以東京晴空塔為核心,是極受歡迎的觀光區域。同時,這里保留著濃厚的歷史遺跡和下町文化,不僅吸引游客,也深受當地居民喜愛。生活環境良好,前往市中心交通便利。如果您想了解特定區域或觀光景點的更多信息,歡迎告知。
您會在一個工作日內得到置業顧問的聯絡




