| 地址 | 東京都荒川區荒川4 | ||
| 價格 | 人民幣:1425萬 | 租金回報 | 5.21% |
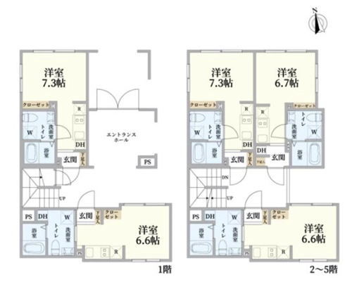
| 建筑年代 | 預計2021年12月竣工 | 建筑結構 | 鋼筋混凝土造 |
| 實際面積 | 315.20㎡ | 土地面積 | 87.45㎡ |
| 陽臺面積 | / | 車庫面積 | / |
| 總戶數 | 14戶 | 所在層 | 1-5 |
| 房型 | 1室 | 朝向 | / |
| 租賃情況 | / | 租金 | 約1,266萬日元/年 |
| 管理費 | / | 修繕費 | / |
| 建蔽率 | 80% | 容積率 | 300% |
| 用途地域 | 準工業地域 | 土地權利 | 永久產權 |
| 交通 | ①千代田線【町屋】站徒步5分鐘 ②京成本線【町屋】站徒步7分鐘 ③JR常盤線【三河島】站徒步9分鐘 | ||
預計2021年12月竣工,永久產權,符合新抗震標準。位于東京都荒川區,3線2站可以利用,距最近【町屋】站徒步5分鐘。周邊有超市,便利店,圖書館,醫院,公園等生活共用設施,稍微走遠一點,還有美術館,運動中心,大學院校等。公寓鋼筋混凝土造5層,設置快遞箱,門禁,防犯監視器24小時監視,全14戶,1室戶型,17.64㎡~17.92㎡,有廚具,收納,浴室換氣烘干暖房器,浴室TV等。海外客戶可以申請日本銀行貸款購房,目前有兩種方式:1.需要在日本設立公司,以法人名義購買,貸款額度約60-70%、還款周期25-35年、貸款利率1.5%起。2.個人名義購買,海外客戶可以申請日本個人抵押貸款購房,不需要設立公司,貸款額度約50-60%,還款周期15-25年,貸款年齡65歲以內,貸款額度不能低于2000萬日元,貸款利率2.7%起。詳情歡迎咨詢。
1. 地理與基本信息:荒川區地處東京都東北部,北鄰足立區,東接葛飾區,南靠臺東區,西與北區和墨田區接壤。面積約10.16平方公里,2023年人口約21萬,下町的氛圍濃厚。這里商店街繁榮,有著支撐當地居民生活的社區。
2. 主要區域及其特色
• 尾久(Oku):尾久站有JR京濱東北線經過,周邊是住宅區。尾久原公園自然環境優美,是當地居民休閑的好去處。
• 西日暮里(Nishi-Nippori):西日暮里站是京濱東北線、山手線、東京地鐵千代田線、京成本線的交匯點,是交通樞紐。飛鳥山公園一部分位于荒川區,是著名的賞櫻勝地。
• 三河島(Mikasadai):三河島站有JR常磐線經過,周邊是寧靜的住宅區。三河島公園兒童游樂場和運動設施完備。
• 町屋(Machiiya):町屋站是京成本線和東京地鐵千代田線的交匯點,商店街活躍。町屋銀座商店街深受當地居民喜愛,充滿活力。
• 南千住(Minami-Senju):南千住站有筑波快線和東京地鐵日比谷線經過,是正在進行再開發的區域。南千住二丁目商店街商業設施眾多,購物便利。
3. 文化與歷史:荒川區自江戶時代就已存在,尤其是作為宿場町發展起來。荒川區立荒川故鄉文化館可以讓人們了解該區的歷史和文化。
4. 觀光景點:飛鳥山公園部分位于荒川區,春天櫻花盛開,景色美麗。荒川自然公園自然環境豐富,可欣賞四季不同的風景。日暮里-舍人線是新型交通系統,改善了區內的交通狀況。
5. 交通出行:鐵路有JR京濱東北線、山手線、常磐線、東京地鐵千代田線、日比谷線、京成本線、筑波快線等。主要車站有尾久站、西日暮里站、三河島站、町屋站、南千住站等。區內有方便出行的公交線路。
6. 生活環境:教育資源豐富,從幼兒園到高中的教育機構齊全,有東京電機大學、東京成德大學等高校。醫療設施完備,有荒川區立醫院、東京北醫療中心等。商業方面,各區域都有商店街和超市,生活便利性高。
7. 活動與節慶:荒川區民節是當地居民參與的大型活動。町屋祭是以商店街為中心,充滿地域活力的節日。
8. 現代的荒川區:荒川區在珍視下町風情的同時,通過再開發增加了新的商業設施和住宅。自然環境優越,公園和綠地眾多,被認為是宜居區域。
總結:荒川區是下町的溫馨氛圍與新開發區域共存的地方,充滿生活氣息。這里交通便利,商業設施和教育機構完備,無論是居住還是觀光都很適宜。尤其是南千住和西日暮里發展迅速,居住著從年輕人到老年人的各年齡段人群。如果您想了解特定區域或觀光景點的更多信息,歡迎告知。
您會在一個工作日內得到置業顧問的聯絡




