| 地址 | 大阪府大阪市港區弁天1丁目 | ||
| 價格 | 人民幣:539萬 | 租金回報 | / |
| 建筑年代 | 2006年8月 | 建筑結構 | 鋼筋混凝土 |
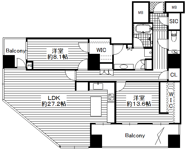
| 實際面積 | 118.18㎡ | 土地面積 | / |
| 陽臺面積 | 19.08㎡ | 車庫面積 | / |
| 總戶數 | 456戶 | 所在層 | 45層 |
| 房型 | 2室1廳 | 朝向 | / |
| 租賃情況 | 空室 | 租金 | / |
| 管理費 | 16310日元/月 | 修繕費 | 18900日元/月 |
| 建蔽率 | / | 容積率 | / |
| 用途地域 | 商業地域 | 土地權利 | 永久產權 |
| 交通 | ①大阪メトロ中央線【弁天町】站徒步1分鐘 ②大阪メトロ中央線【朝潮橋】站徒步6分鐘 | ||
林 武振 営業部
公寓于2006年8月新建,光照充足,永久產權,隨時可入住。該公寓位于大阪市港區,港區是大阪市的24個行政區之一。1947由芝區、抹布區、赤坂區合并而成,經過數十年的發展和變遷,區內的泉岳寺、增上寺與國立新美術館、東京都庭園美術館、根津美術館等成了改區市民生活不可分割的一部分。而因為其得天獨厚的海港地理位置,更是吸引了諸多大企業在此設立總部,港區也是外資企業最多的地區,現在也已然成為了大阪交通極為便利教育極其發達的行政區之一,縱觀全境的東海旅客鐵路、東日本旅客鐵路、東京地下鐵等給這里的商業和通行提供了便利。教育方面,僅國公立大學就有20余所,其中東京大學科學研究所更是坐落于此,除此之外的高等學校、中學校、小學校、幼稚園等多達40余所,無論是從生活幸福指數方面、還是自身發展亦或者教育后代而言,港區都是日本大阪府最為適合的選擇。
大阪 港區
地址:大阪府大阪市港區弁天1丁目
交通:①大阪メトロ中央線【弁天町】站徒步1分鐘
②大阪メトロ中央線【朝潮橋】站徒步6分鐘
您會在一個工作日內得到置業顧問的聯絡




