| 地址 | 大阪市阿倍野區阿倍野筋3丁目 | ||
| 價格 | 人民幣:502萬 | 租金回報 | / |
| 建筑年代 | 1987年1月 | 建筑結構 | 鋼筋鐵骨混凝土 |
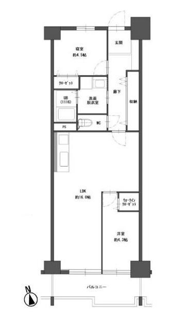
| 實際面積 | 61.44㎡ | 土地面積 | / |
| 陽臺面積 | 7.64㎡ | 車庫面積 | / |
| 總戶數 | 337戶 | 所在層 | 17層 |
| 房型 | 2室1廳 | 朝向 | / |
| 租賃情況 | 空室 | 租金 | / |
| 管理費 | 9093日元/月 | 修繕費 | 10444日元/月 |
| 建蔽率 | / | 容積率 | / |
| 用途地域 | 商業地域 | 土地權利 | 永久產權 |
| 交通 | ①大阪メト谷町線【阿倍野】站徒步2分鐘 ②JR大阪環狀線/地下鐵御堂筋線【天王寺】站徒步6分鐘 | ||
林 武振 営業部
公寓于1987年1月建成,永久產權。位于大阪市阿倍野區,阿倍野區是大阪市的24個行政區之一,阿倍野區的房價是比較便宜的,低于大阪市平均的土地價格,但是卻有穩定的增長率,有很大的增值空間。而且阿倍野區連接JR•大阪市營地鐵,前往關西國際機場和奈良的交通也十分方便。同時阿倍野區也是有名的別墅區,有著優美的環境,完善的生活設施,便利的交通條件等,所以如果想在日本購買房產,阿倍野區是一個比較不錯的選擇。物件距最近車站【】站徒步2分鐘,公寓周邊生活設施齊全,距超市約34m,距藥妝店約30m,距小學校約80,距中學校約1500m,經濟活動十分活躍,地理位置優越。交通便利。
大阪 阿倍野區
地址:大阪市阿倍野區阿倍野筋3丁目
交通:①大阪メト谷町線【阿倍野】站徒步2分鐘
②JR大阪環狀線/地下鐵御堂筋線【天王寺】站徒步6分鐘
您會在一個工作日內得到置業顧問的聯絡




