| 地址 | 東京都三鷹市井口 | ||
| 價格 | 人民幣:1073萬 | 租金回報 | 6.2%(預計) |
| 建筑年代 | 預計2020年2月 | 建筑結構 | |
| 實際面積 | 228.78㎡ | 土地面積 | 136.74㎡ |
| 陽臺面積 | 車庫面積 | ||
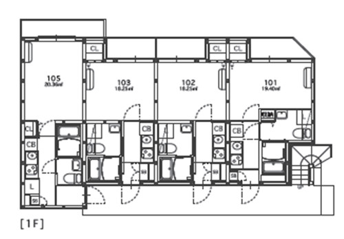
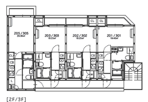
| 總戶數 | 12戶 | 所在層 | 1-3 |
| 房型 | 1室 | 朝向 | |
| 租賃情況 | 租金 | 約10,080,000日元/年 | |
| 管理費 | 修繕費 | ||
| 建蔽率 | 70% | 容積率 | 200% |
| 用途地域 | 第1層中高層住居專用地域 | 土地權利 | 永久產權 |
| 交通 | JR中央線武蔵境站徒步9分鐘 | ||
預計2020年2月竣工的整棟公寓,永久產權,位于東京都三鷹市, 這里因著名的三鷹之森吉トカ美術館而廣為大家熟知。交通便捷,距最近車站武蔵境站徒步9分鐘,車站周邊伊藤洋華堂商場,多家學府等生活設施齊全,生活便利。公寓室內采光通風均良好,配有可視對講機,獨立洗面臺,衛浴分離,空調,溫水洗凈功能馬桶,收納等,年租金約10,080,000日元,表面回報率達6.2%,另外,物件可以申請日本銀行貸款,首付4-5成,貸款利率2.9%,貸款周期25年。撬動杠桿不但可以增加收益,還降低了投資風險!
1. 地理與基本信息:三鷹市地處東京都西部的多摩地區,北鄰武藏野市,東接杉并區,南靠世田谷區,西與小金井市接壤。面積約16.35平方公里,2023年人口約19萬,作為寧靜的住宅區頗受歡迎。這里綠樹成蔭,井之頭公園尤為出名,同時作為文教區域,擁有眾多教育機構。
2. 主要區域及其特色
• 三鷹站周邊:三鷹站是JR中央線和京王井之頭線的交匯點,是交通樞紐。三鷹CORAL是與車站直接相連的購物中心,生活用品和時尚商品齊全。三鷹臺商店街等眾多深受當地居民喜愛的商店街在此分布。
• 井之頭公園:井之頭公園是橫跨三鷹市和吉祥寺的大型公園,四季皆可欣賞自然美景,以賞櫻勝地聞名。井之頭自然文化園是集動物園和植物園為一體的設施,是適合家庭的休閑場所。
• 新川(Shinkawa):是寧靜的住宅區,綠樹成蔭的街景隨處可見。
• 大澤(ōsawa):自然環境優越,是氛圍寧靜的住宅區。
3. 文化與歷史:三鷹市在明治時代被開發,井之頭恩賜公園是具有重要歷史意義的場所。三鷹市美術館是介紹當地藝術的場館。
4. 觀光景點:井之頭公園是都市中的一片凈土,可劃船游玩和散步,據說也是動畫《龍貓》的取景地。三鷹之森吉卜力美術館是以吉卜力工作室作品為主題的美術館,是粉絲必去的景點。井之頭恩賜公園是自然與歷史和諧相融的公園,還可觀賞水鳥。
5. 交通出行:鐵路有JR中央線和京王井之頭線經過。主要車站是三鷹站。市內出行乘坐巴士很方便,尤其是前往“吉祥寺站”的巴士班次頻繁。
6. 生活環境:教育資源豐富,從幼兒園到高中的教育機構完備。三鷹市作為文教區域,有國際基督教大學、東京學藝大學等高校的校區。醫療設施完備,有三鷹市醫師會醫院、東京醫科大學八王子醫療中心(鄰近)等。商業方面,三鷹站周邊商業設施集中,生活便利性高。
7. 活動與節慶:三鷹阿波舞是每年夏天舉辦的當地節日,熱鬧非凡。三鷹市制紀念慶典是慶祝城市歷史和文化的活動。
8. 現代的三鷹市:三鷹市是自然與文教和諧相融的城市,井之頭公園和吉卜力美術館是重要的觀光資源。作為寧靜的住宅區深受歡迎,育兒環境也備受好評。
總結:三鷹市是自然環境優美且充滿教育氛圍的區域。擁有井之頭公園和吉卜力美術館等觀光資源,生活所需設施也很完備。交通便利,前往市中心方便,作為宜居城市獲得高度評價。如果您想了解特定區域或觀光景點的更多信息,歡迎告知。
您會在一個工作日內得到置業顧問的聯絡




