| 地址 | 東京都中央區日本橋 | ||
| 價格 | 人民幣:7520萬 | 租金回報 | 4.4%(預計) |
| 建筑年代 | 2019年3月 | 建筑結構 | 鋼筋混凝土造 |
| 實際面積 | 934.13㎡ | 土地面積 | 162.63㎡ |
| 陽臺面積 | 車庫面積 | ||
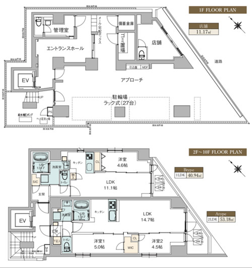
| 總戶數 | 19戶 | 所在層 | 1-10 |
| 房型 | 1室1廳× 9戶 2室1廳×9戶 店鋪×1戶 | 朝向 | |
| 租賃情況 | 租金 | 約50,926,680日元/年/滿室 | |
| 管理費 | 修繕費 | ||
| 建蔽率 | 80% | 容積率 | 600% |
| 用途地域 | 商業地域 | 土地權利 | 永久產權 |
| 交通 | 都營淺草線東日本橋站徒步2分鐘; 總武線馬喰町站徒步3分鐘; 都營新宿線馬喰橫山站徒步3分鐘; 中央總武線/都營淺草線淺草橋站徒步8分鐘; 日比谷線小伝馬町站徒步10分鐘 | ||
2019年3月新建成的整棟高級公寓,永久產權,符合新抗震標準。位于東京都中央區,交通便利,6線路5站可以利用,距最近車站東日本橋站徒步2分鐘,其他車站徒步均10分鐘內可到達,通往淺草站直通4分鐘,新橋站直通8分鐘,東京站直通14分鐘,新宿站20分鐘,池袋站27分鐘,地理位置優越。公寓坐落于擁有著從江戶時代經營的老店鋪和大型商業設施的傳統文化街區,周邊公園,綠地郁郁蔥蔥,環境優美。購物方便,羅森,7-11,全家等多家便利店,多家超市均徒步5分鐘內便可到達,生活便利。公寓鋼筋混凝土造地上10層,全19戶,其中1層店鋪,面積11.17㎡,2-10層住居,1室1廳9戶,面積40.94㎡,2室1廳9戶,面積53.18㎡,室內采光,通風均良好,生活設施齊全,配有自動鎖,快遞箱,全戶空調,照明器具等,滿室出租的情況,年租金約50,926,680日元,表面回報率達4.4%,另外,物件可以申請日本銀行貸款,首付4-5成,貸款利率2.9%,貸款周期25年。撬動杠桿不但可以增加收益,還降低了投資風險!
1. 地理與基本信息:中央區地處東京都東部,隔隅田川與江東區、墨田區相望,南鄰港區,北接文京區和千代田區。面積約10.21平方公里,2023年人口約16萬。由于其濃厚的商業區屬性,白天人口數量遠多于夜間。這里不僅是日本經濟活動的核心,還擁有眾多歷史遺跡,是備受歡迎的觀光勝地。
2. 主要區域及其特色
• 銀座(Ginza):匯聚了全球知名的高端品牌店。銀座三越、松屋銀座、銀座六本木等百貨公司坐落于此。歌舞伎座是體驗日本傳統文化的劇場。
• 日本橋(Nihonbashi):日本橋是一座歷史悠久的橋梁,被譽為“日本道路的起點”。三越本店是日本最古老的百貨商店之一。COREDO室町是利用歷史建筑改造的商業設施。
• 京橋(Kyōbashi):東京站是日本鐵路的樞紐,眾多新干線和普通鐵路線在此始發和終到。丸之內大廈是集辦公與商業設施于一體的綜合建筑。
• 筑地(Tsukiji):筑地市場曾是世界最大的批發市場,現雖已遷至豐洲,但外市場仍保留。筑地場外市場可品嘗到新鮮的海產品和壽司。
• 月島(Tsukishima):月島文字燒街匯聚了提供文字燒和御好燒的眾多餐飲店。
• 浜離宮恩賜庭園(Hama-rikyū Gardens):作為江戶時代的大名庭園,可在此欣賞自然與歷史的交融之美。
3. 文化與歷史:中央區自江戶時代起就是商業中心,尤其是日本橋,曾是江戶五街道的起點。江戶東京博物館(位于墨田區,但從中央區前往便利)可讓人了解從江戶時代到現代的東京歷史。
4. 觀光景點:皇居外苑是皇居周邊的觀光地,二重橋和皇居東御苑頗受歡迎。三菱一號館美術館展示近代美術作品。COREDO室町露臺是傳統與現代融合的商業設施。
5. 交通出行:東京站匯集了新干線、JR東日本、東京地鐵、都營地鐵等眾多線路。主要車站有東京站、銀座站、日本橋站、筑地市場站等。區內有方便出行和觀光的公交線路。
6. 生活環境:中央區的中小學數量較少,部分居民會選擇周邊區的學校。醫療設施完備,有圣路加國際醫院、東京慈惠會醫科大學附屬醫院等大型醫療機構。商業發達,銀座和日本橋的購物選擇極為豐富。
7. 活動與節慶:銀座夏日祭是每年夏天舉辦的當地節日。日本橋街道慶典是由商店街聯合舉辦的活動。
8. 現代的中央區:中央區在保持商業中心地位的同時,不斷提升作為觀光地的吸引力。高層建筑和再開發項目持續推進,丸之內和日本橋地區的現代化進程加快。國際化色彩濃厚,吸引了大量外國游客和商務人士。
總結:中央區是東京歷史與經濟緊密相連的獨特區域,無論是作為觀光地還是商業區都極具魅力,是東京傳統與現代交匯的代表。這里既適合居住也適合觀光,但物價和房租相對較高。如果您想了解特定區域或觀光景點的更多信息,歡迎告知。
您會在一個工作日內得到置業顧問的聯絡




